中央興辦社會住宅進度 | 安居·好室
安居好室線上申請
返回
規劃中
待開工
興建中
新完工
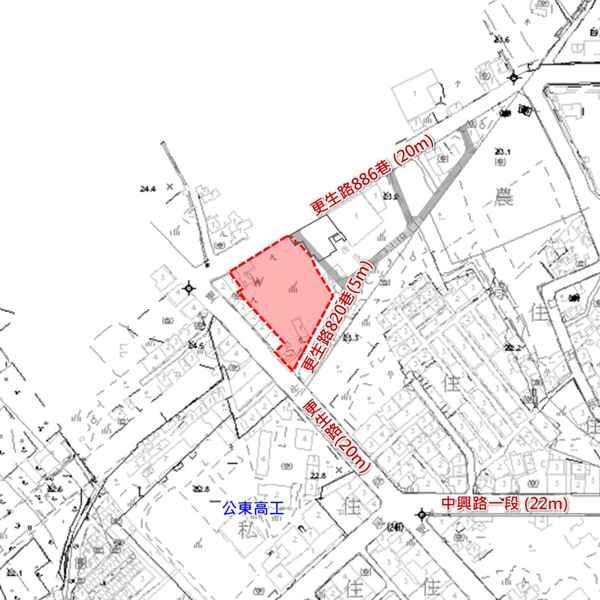
臺東縣 \ 臺東市

仁和好室

施工進度 | 最新公告

18.76%

預估進度

17.45%
分享
分享
興建中

基本資訊

基地面積:
6769.05平方公尺
總戶數:
190戶
房型規劃:
套房型 / 120 戶
二房型 / 50 戶
三房型 / 20 戶
附屬設施:
托嬰中心、社區日間作業設施
興辦進度:
決標日期 / 112年9月22日
建照日期 / 114年7月1日
開工日期 / 114年7月1日
竣工日期 / 116年7月12日
V-950-003
返回頂端